3 Bedroom Bungalow - Detached
Durham Road, Stockton-On-Tees , TS19 0PT
£199,950+
3 Bedrooms •1 Bathrooms •1 ReceptionsLegal Pack
Awaiting legal pack from sellers solicitors - Please enter your details and we will contact you as soon as it becomes available.
**** Fantastic Development Opportunity ***
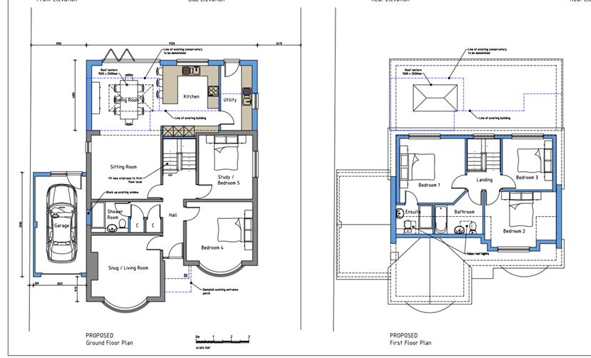
On this large garden plot of approximately 0.25 acres currently sits a large, detached bungalow with planning, that has been granted, to convert the building into a 5 bed detached house.
Further development should be considered, subject to permissions, as there is side access to the rear garden.
Planning permission approved with conditions: Raising of roof heights and creation of a first floor, to include roof lights to front and dormer windows to front and rear. Erection of single storey rear extension and garage to side. (Loft conversion, windows alterations, demolition of existing porch and conservatory) – Permission expiry date Tue 16 Jan 2029.
Fantastic Development Opportunity
Large garden plot of approximately 0.25 acres
Currently comprises a large, detached bungalow with 3 bedrooms
Planning permission granted to convert into a 5-bedroom detached house
Further development potential (subject to permissions)
Side access to the rear garden
Planning Permission Approved (with conditions): Raising of roof heights, creation of a first floor
roof lights to the front, dormer windows to the front and rear, single-storey rear extension, garage to the side, loft conversion and window alterations
Alternative development, for less cost, would be to extend the back of the property at ground level only to make large open plan kitchen/living room looking onto the rear garden as per architect’s plans
Property details provided by Michael Poole
EPC rating: to be advised
Council Tax Band: D
Tenure: Freehold
For Sale By Auction www.agentspropertyauction.com LIVE ONLINE AUCTION 26 February 2026 OPTION 1
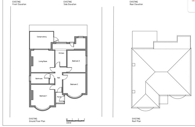
ENTRANCE PORCH
ENTRANCE HALL
With store cupboard.
BEDROOM
4.14m x 3.84m (13’7″ x 12’7″)
REAR LIVING ROOM
4.11m x 3.66m (13’6″ x 12′)
FRONT BEDROOM
4.17m x 3.94m (13’8″ x 12’11”)
REAR BEDROOM
3.6m x 3.1m (11’10” x 10’2″)
L’ SHAPED KITCHEN
5.4m (17’9″) (max) x 1.63m (5’4″) (max) into utility area
CONSERVATORY
4.17m x 3m (13’8″ x 9’10”)
BATHROOM
Disclaimer 1
The Agents Property Auction have not inspected this property. The property details have been supplied by MP. None of the services have been tested. Measurements, where given, are approximate and for descriptive purposes only. Boundaries cannot be guaranteed and must be checked by solicitors prior to exchanging contracts. The details are provided in good faith, are set out as a general guide only and do not constitute any part of a contract. No member of staff has any authority to make or give representation or warranty in relation to this property.
For sale by auction see www.agentspropertyauction.com
Disclaimer 2
Each auction property is offered at a guide price and is also subject to a reserve price. The guide price is the level where the bidding will commence. The reserve price is the sellers minimum acceptable price at auction and the figure below which the auctioneer cannot sell. The reserve price, which may be up to 10% higher than the guide price, is not disclosed and remains confidential between the seller and the auctioneer. Both the guide price and the reserve price can be subject to change up to and including the day of the auction. The successful buyer pays a £2000+vat (total £2400) Auction Administration Fee. At your request we can refer you to a North East based Solicitor from our panel. It is your decision whether you choose to deal with them, should you decide to use them you should know that we would receive a referral fee between £200 plus VAT (£240) and £400 plus VAT (£480) from them for the recommendation.
Disclaimer 3
A copy of the title is available upon request, we recommend all potential buyers take legal advice, satisfy their requirements on all matters and have finance in place prior to purchase.
Details awaiting vendors approval.
Disclaimer 4
We are advised by the seller that the property has mains provided gas, electricity, water (very low risk of surface water flooding) and sewerage.
The energy performance certificate attached advises the property is brick built and provides further details regarding the property’s construction.
Ofcom website states the average broadband download speed of 4Mbps and the fastest package of 1800Mbps at this postcode: TS19 0PT and mobile coverage is provided by EE (good outdoor and variable indoor), Three (good outdoor and variable indoor), 02 (good outdoor) and Vodaphone (good outdoor)
Book a viewing
Register your interest
More properties
See all properties£199,950+ (Guide price)
3 Bedroom Bungalow - Detached,
Durham Road, Stockton-On-Tees
3 Bedrooms •1 Bathrooms •1 Receptions
£100,000+ (Guide price)
2 Bedroom House - End Terrace,
Morton Close, Murton, Seaham
2 Bedrooms •1 Bathrooms •1 Receptions